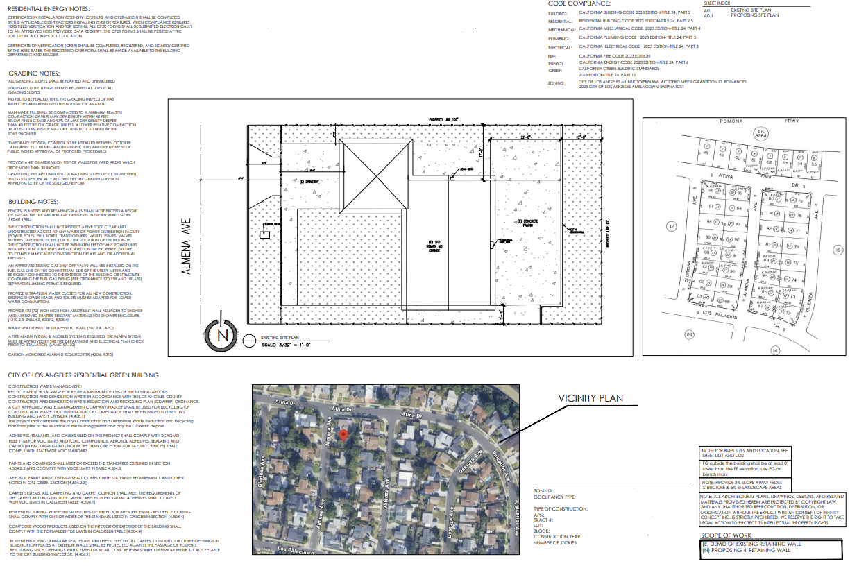
Retaining Wall
Engineered retaining wall designs with full structural coordination and permit-ready documentation.
Engineered retaining wall designs with full structural coordination and permit-ready documentation.